Where heritage, culture and community connects with food and retail


Where heritage meets contemporary retail, this food hall refurbishment reimagines a beloved destination in Newcastle upon Tyne with a design that honours history while elevating the modern customer experience.

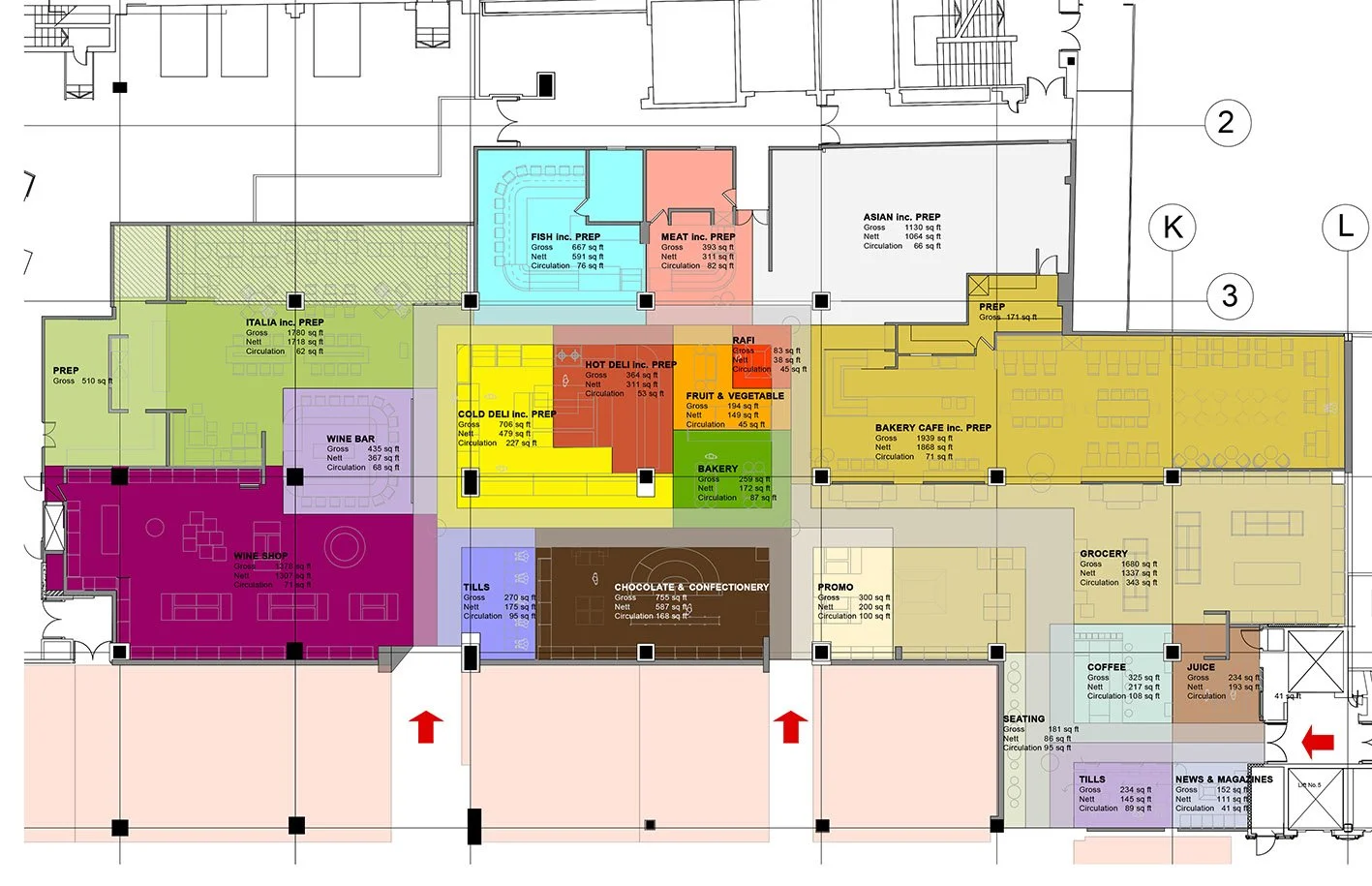
Aligned with the wider Fenwick shop floor, the scheme creates seamless sightlines and intuitive circulation, allowing shoppers to move effortlessly between retail and hospitality. The concept celebrates the food hall’s longstanding connection to the city and its proud community, delivering a timeless environment rooted in place and tradition.

Material choices reinforce this narrative. Decorative tiling, coffered ceilings, and traditionally styled counters establish a classic framework, while contemporary detailing and lighting bring clarity, warmth, and performance for today’s trading demands. The result is a cohesive space that merges food retailing and hospitality to create a dynamic yet authentically traditional atmosphere.