Wimbledone, town house, kitchen/ roof terrace proposal


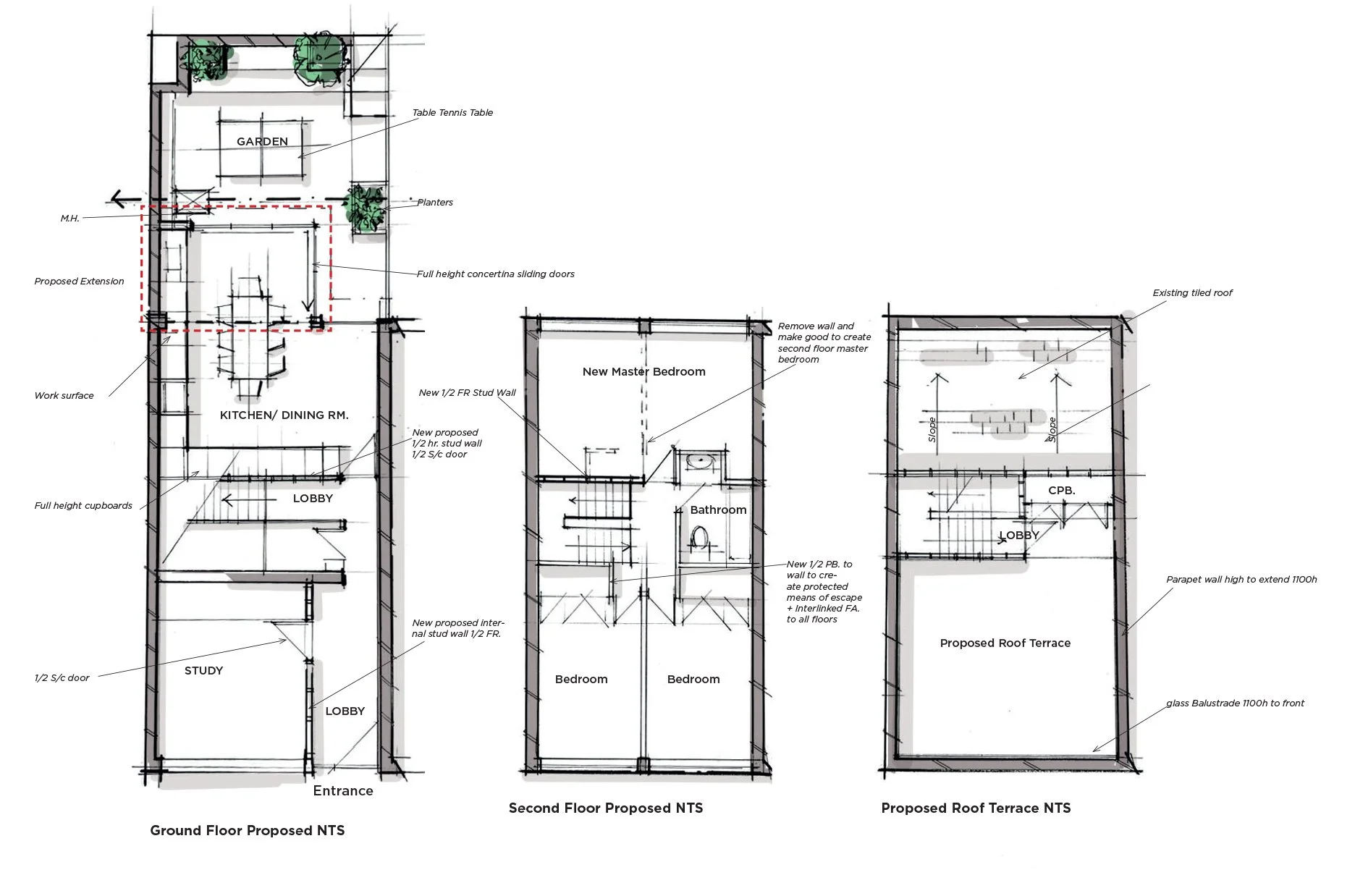
This residential townhouse in Wimbledon explores a contemporary approach to open-plan living, creating a seamless connection between the kitchen, dining, and garden spaces. The design concept emphasises a fluid relationship with the outdoors, bringing natural light and greenery into the heart of the home.

Initial sketch proposals and moodboards were developed to convey the spatial concept, material palette, and overall aesthetic, allowing clear communication of design intent. A roof terrace concept on the flat roof enhances usable outdoor space, offering a private retreat and extending living areas vertically.

The project demonstrates how thoughtful layout and design detailing can merge interior and exterior spaces, delivering a modern, functional, and visually appealing townhouse that prioritises light, openness, and lifestyle connectivity.