1930s Brick-Built Home Remodelling in South Downs National Park

Traditional Styling with Contemporary Interior Layout for Modern Living


This 1930s four-bedroom home with garage and annex is situated in the picturesque village of Friston, offering far-reaching views toward Firle Beacon and beyond within the sensitive setting of the South Downs National Park.

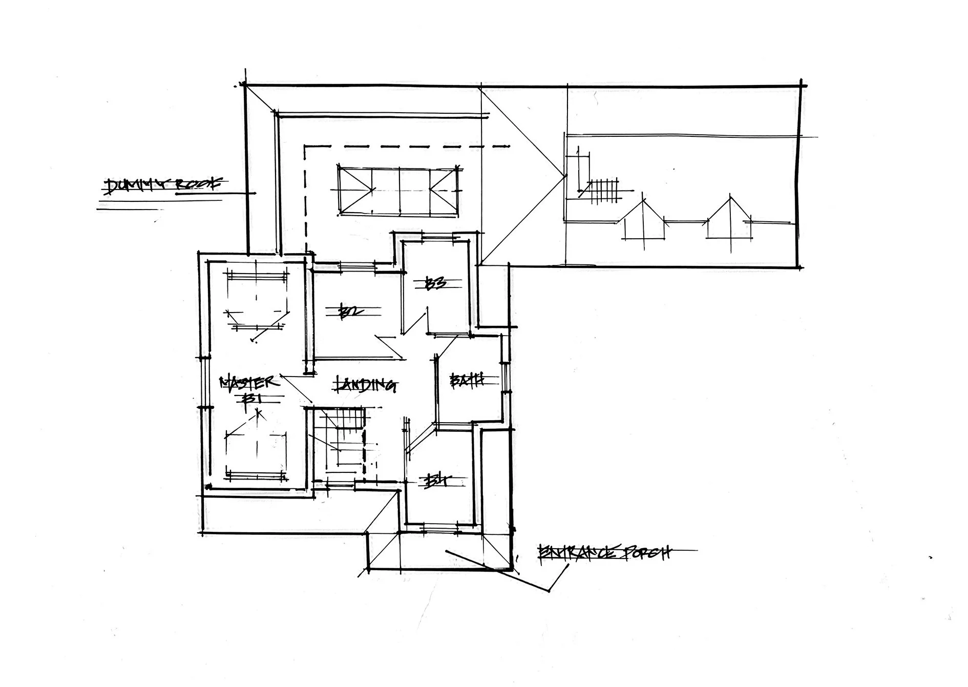
The project involved ground-floor remodelling and the addition of a new master bedroom on the first floor, designed to maximise views over the Sussex countryside. The perimeter pitched roof defines the external composition and creates a visual datum, while hung peg tiles maintain a heritage-inspired, traditional aesthetic.

From initial sketch proposals and layout discussions with the client to full planning and building regulation submissions, the scheme balances sensitive design, contextual harmony, and contemporary living needs.